Waiting for video...
Viewmount is just about a mile from Junction 7 of the M9 Dublin to Waterford Motorway outside the village of Paulstown, Co. Kilkenny.
Kilkenny is 18 kilometers away and Dublin's M50 just 1 hour.
Viewmount House, Paulstown, Co. Kilkenny
Kilkenny 18kms, M9 (J7) only 2kms, Dublin 1 hour. Great location.
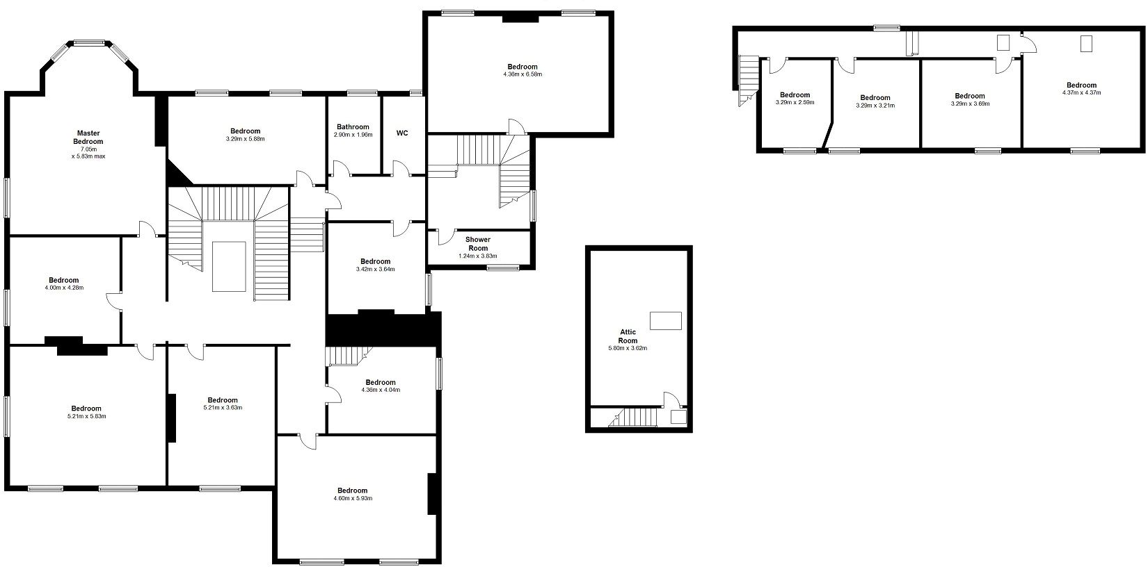
A large and magnificent Victorian home in its own parkland hidden on top of a hill in plain view, hence the name. Wonderful views, great privacy. House in fine structural order but needing modernisation. Wonderful features and quality throughout. C.750 square meters, 8 bedrooms, 4 reception rooms, fine hall, walled garden, parkland setting.
AMV €600,000
BER G
Contact joint agents; Michael Boyd REA Boyds 087261169
Mikeala Kenny, Colliers, 01 6333700
Viewmount offers magnificently proportioned accommodation with many of the rooms enjoying sunny aspects and wonderful views. te main house has 4 reception rooms, a very fine reception hall and domestic offices to include the kitchen, various pantries, sculleries and larders. A granny flat with a large kitchen and two rooms and bathroom occupies the service wing. there are a further 4 unused servants rooms and various laundries, coach-houses, tack rooms and stables. Externally on the circa 7 acres there are two walled gardens and extensive lawns. the entire is in need of refurbishment.
Mikeala Kenny, Colliers
TOTAL FLOOR AREA: 800.000 SQ MTRS / 8611.200000 SQ FT
Submit an enquiry and someone will be in contact shortly.
By setting a proxy bid, the system will automatically bid on your behalf to maintain your position as the highest bidder, up to your proxy bid amount. If you are outbid, you will be notified via email so you can opt to increase your bid if you so choose.
If two of more users place identical bids, the bid that was placed first takes precedence, and this includes proxy bids.
Another bidder placed an automatic proxy bid greater or equal to the bid you have just placed. You will need to bid again to stand a chance of winning.